Поиск по сайту

Введите запрос для поиска например, структура администрации
Закрыть
Служба по контракту: присоединяйся к СВОим Служба по контракту: присоединяйся к СВОим
Главные новости

В Садовом сквере Краснодара сделают спортплощадку для занятий волейболом и баскетболом

4 сентября 2019

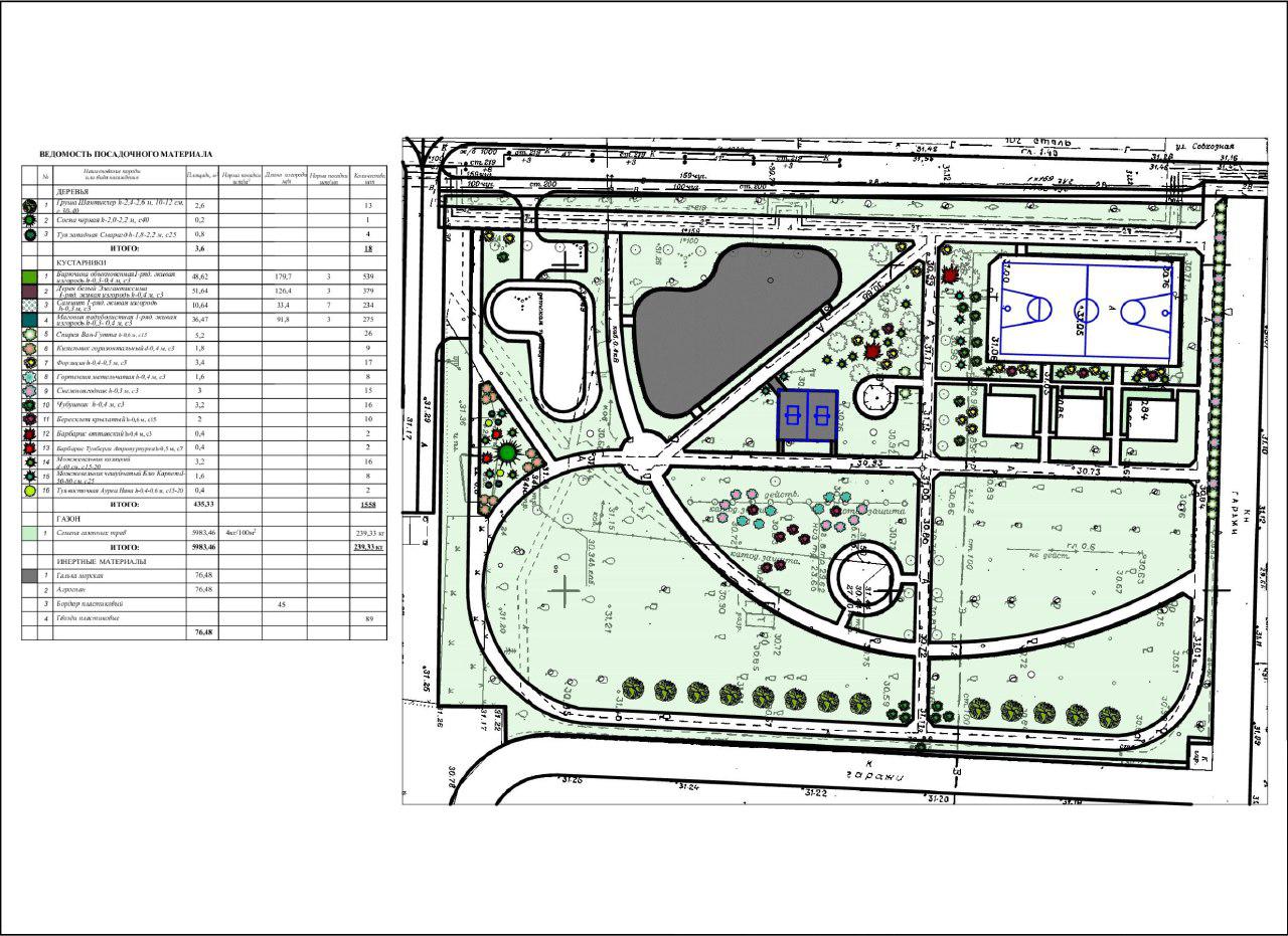
Ее площадь — 522 кв. м, по периметру установят четырехметровое усиленное ограждение. Сейчас готовность сквера — 80%. Здесь завершают укладку тротуарной плитки, монтаж уличного освещения, установку детской игровой и комплексной спортивной площадки для занятий волейболом и баскетболом.

— В отличие от остальных зеленых зон, которые обновляем в этом году, «Садовый» — сквер, которого раньше не существовало. Мы создаем его на месте, где до этого стояли гаражи и была стихийная парковка. Благодаря активности краснодарцев и возможностям национальных проектов к предстоящему Дню города в центральной части краевого центра мы получим новый благоустроенный сквер с зонами активностей для детей и взрослых, — сказал заместитель главы Краснодара Андрей Дорошев.

Ранее на личный прием к главе Краснодара Евгению Первышову с просьбой благоустроить эту территорию пришли жители домов по ул. Садовой. Глава города рассказал о возможности сделать это в рамках приоритетного федерального проекта — для этого жителям было необходимо активно поддержать сквер во время рейтингового голосования. «Садовый» стал одним из лидеров по его результатам.

Сквер расположен по ул. Садовой между ул. Длинной и ул. Пашковской, его площадь — 7,6 тыс. кв. м. Сейчас там завершают укладку тротуарной плитки, монтаж автоматической системы полива, установку лавочек, уличного освещения. Сделают детскую игровую площадку, а также большую спортивную для занятий игровыми видами спорта. Осенью дополнительно высадят 176 деревьев, 2117 кустарников.

Готовность объекта — 80%, подрядчик — ООО «Европа».

Федеральный проект «Формирование комфортной городской среды», входящий в нацпроект «Жилье и городская среда», в Краснодаре реализуют с 2017 г. Комплексное обновление зеленых зон завершат к предстоящей 226-й годовщине Краснодара.

Всего в 2019 г. в столице Кубани преобразуют девять зеленых зон. Шесть — по федеральному проекту «Формирование комфортной городской среды»: четыре сквера («Фестивальный», «Садовый», «Пограничников», «Студенческий») и два бульвара («Гагаринский» и «Офицерский»). За счет экономии средств городского бюджета благоустроят скверы «Майский» и «Прохладный», а также бульвар «Симферопольский». Такое количество зеленых зон за год в городе обновят впервые.

Благоустройство территорий по нацпроекту «Жилье и городская среда» планируется завершить уже ко Дню города.

Всего за три года (2017 — 2019 гг.) в Краснодаре благоустроят 14 зеленых зон. Причём две — сквер «Садовый» и сквер 80-летия образования Краснодарского края — новые рекреационные территории.

Благоустроенные зеленые зоны в 2017 г.

Сквер Вишняковский

Бульвар «Дальний» по ул. Дальней

Площадь перед кинотеатром «Болгария»

Сквер Молодёжный (КСК)

Территория между Первомайским районным судом и Дворцом бракосочетания «Екатерининский зал»


Благоустроенные зеленые зоны в 2018 г.

Первая очередь сквера 80-летия образования Краснодарского края


Зеленые зоны для благоустройства в 2019 г.

(нынешнее состояние и проект благоустройства)

Сквер «Садовый»



Сквер «Студенческий»



Сквер «Фестивальный»



Сквер Пограничников



Бульвар «Офицерский»



Бульвар «Гагаринский»

Сквер «Майский»

Сквер «Прохладный»

Больше новостей Краснодара:
Темы новости
Копировать URL
Распечатать
Больше новостей Краснодара
Подписаться